頂管施工技術作為非開挖施工技術,具有施工過程中不影響地面交通、對施工區(qū)域的居民生活影響小、施工周期短、綜合成本低等優(yōu)點,在城市地下管網(wǎng)、穿越鐵路公路和河流等地下工程中得到了廣泛的應用[1]。本文在頂管法施工技術理論的基礎上,結(jié)合成都市雨污水干管建設工程中江安河段倒虹管施工實例,圍堰明挖與泥水平衡式頂管法施工工藝的技術措施及造價進行了對比、分析,為類似工程造價管理提供借鑒。
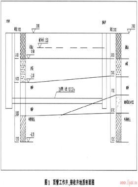
工程實踐 




